Top

Janesville Innovation Park

Hwy 11 & County Road G
Janesville, WI 53546

Overview

  • Janesville Innovation Park is a master-planned, multi-phase, Class A industrial development in a rapidly growing industrial corridor. With multiple phases, flexible building footprints, and plenty of available land, the park can support a wide range of users and offers great opportunities for build-to-suit projects and future expansion.
  • Strategically located near the Wisconsin–Illinois border, the park offers immediate connectivity to major interstates, including I-90 and I-39. This provides efficient access to key Midwest population markets and logistics corridors.
  • Situated within a business-friendly community, the park benefits from a strong regional workforce and supportive local economic development partners, helping ensure long-term success for occupants.

Building Information

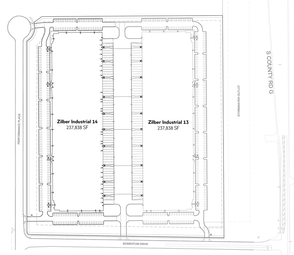
BUILDING SQUARE FOOTAGE AVAILABILITY
Zilber Industrial 13
237,838 SF
237,838 SF (Divisible)

Contact



Location



TRAVEL DISTANCES

  • 2 Miles to I-90/I-39
  • 12 Miles to Wisconsin-Illinois Border
  • 45 Miles to Madison, WI
  • 75 Miles to Milwaukee, WI
  • 100 Miles to Chicago, IL
  • 300 Miles to Minneapolis, MN

HIGHLIGHTS

  • Easy access to I-90/I-39 via WI-11
  • Low Wisconsin tax environment
  • Stable, pro-business environment
  • Access to extensive labor shed of Rock County and beyond
  • Local, professional ownership and property management

Site Plan: Phase 1

-->